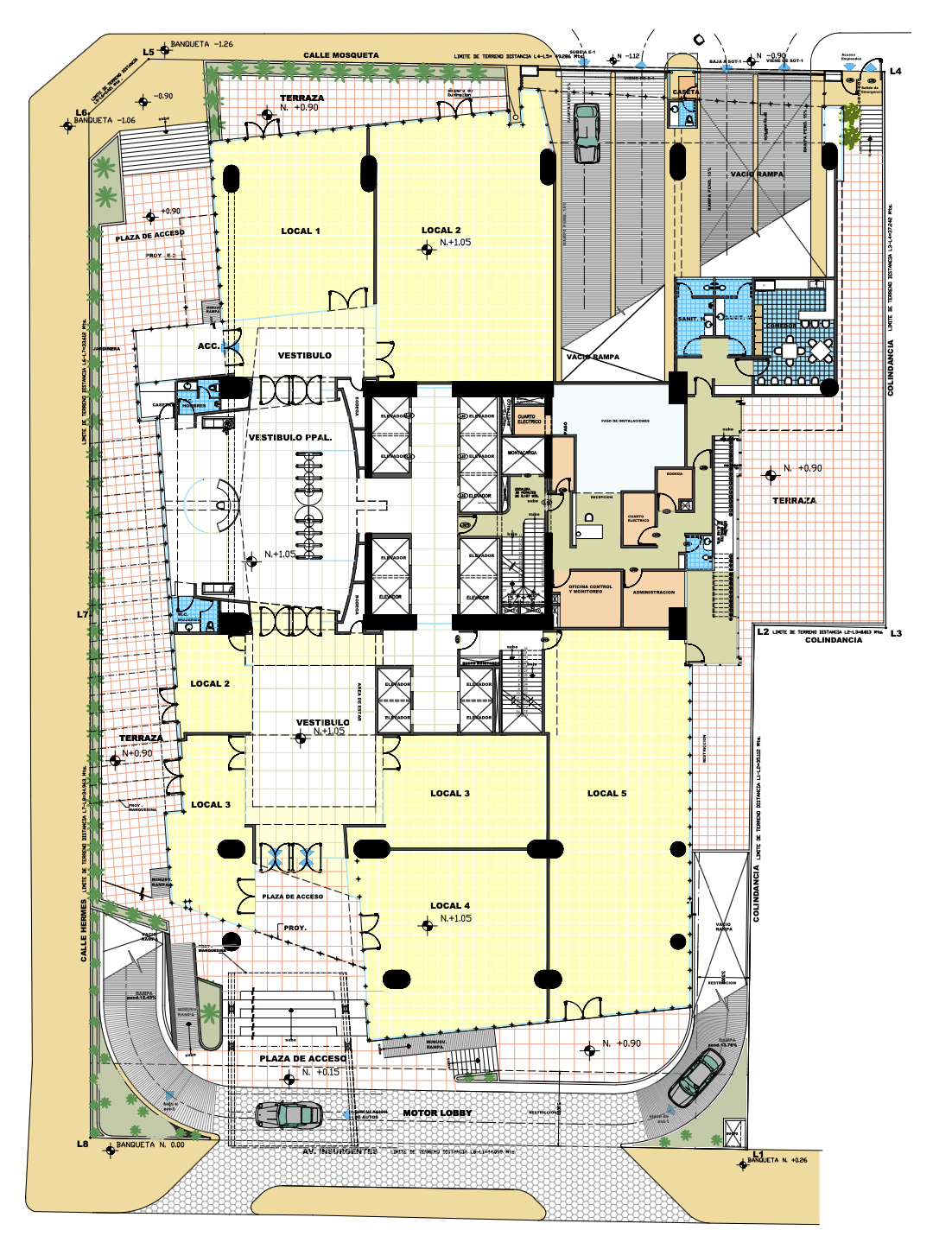
El proyecto arquitectónico contempla generosas alturas, además de claros libres, garantizando así un porcentaje alto de eficiencia.
Áreas prediseñadas para la instalación de equipos de aire, redes de telefonía, entre otros, que permite la distribución de una planta completa sin necesidad de sacrificar espacios de oficina.
Corporativo Citi Center cuenta con un diseño eficiente el cual genera grandes ahorros.
| Área total (rentable) | 40,500 m² |
| Área total (útil) | 36,025 m² |
| Planta tipo de oficinas (rentable) | 2,200 m² |
| Planta tipo de oficinas (útil) | 1,950 m² |
| Niveles de oficinas | 19 niveles |
| Niveles de estacionamiento | 13 niveles |
| Número de cajones | 1 c/30 m² |
| Altura de Entrepiso | 4.40 m |
