Corporativo MCS

Blvd. Miguel de Cervantes Saavedra 193, Granada, Miguel Hidalgo, 11520 Ciudad de México, CDMX
  • Desarrollos
  • Tipo de propiedad
  • 15
  • Niveles de oficinas
  • 1,405 m²
  • Planta tipo
  • 9 niveles
  • Estacionamiento
  • 19990

Corporativo MCS

Blvd. Miguel de Cervantes Saavedra 193, Granada, Miguel Hidalgo, 11520 Ciudad de México, CDMX

Oficinas

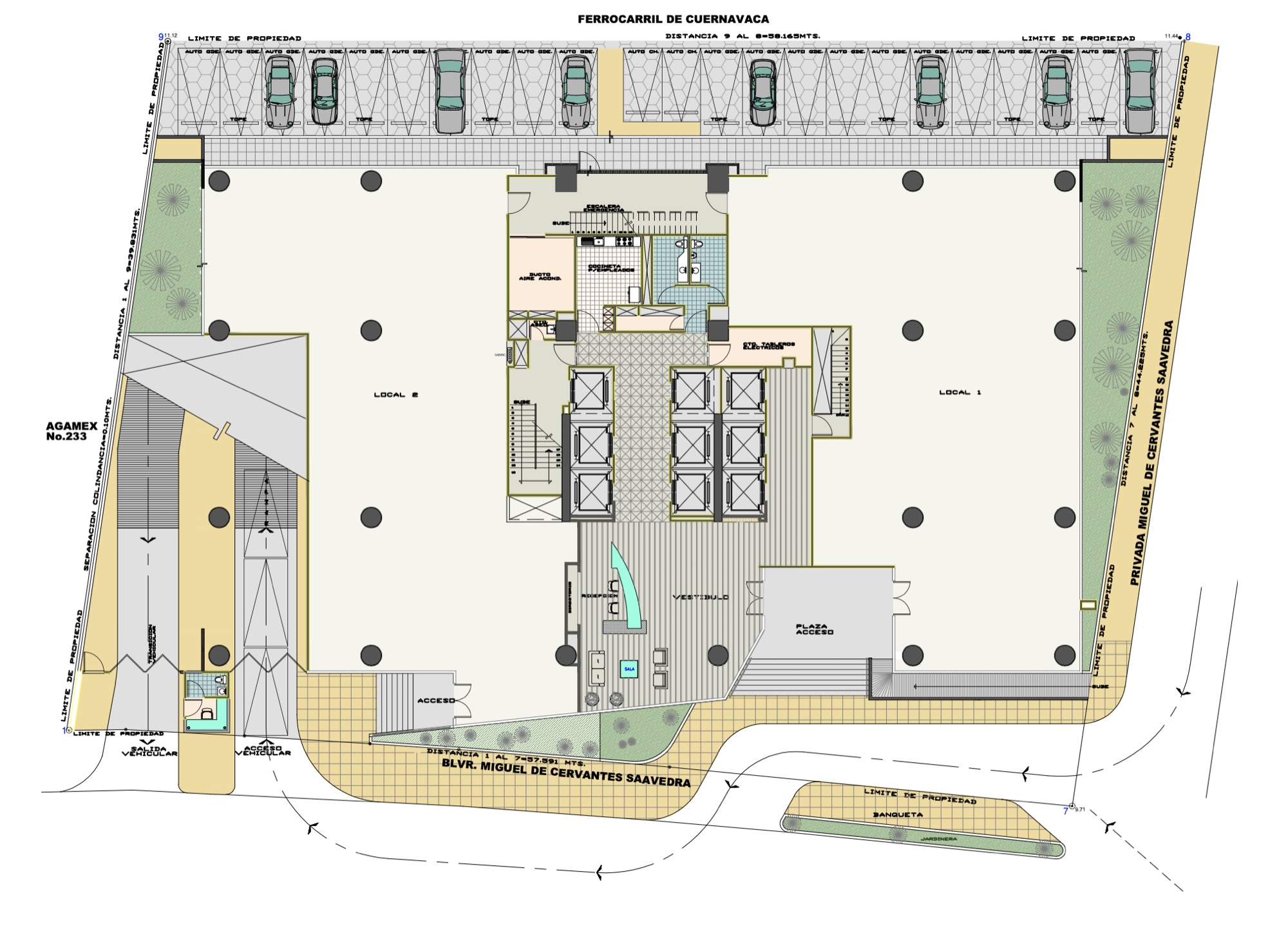
El proyecto arquitectónico contempla generosas alturas, además de claros libres, garantizando así un porcentaje alto de eficiencia.

Áreas prediseñadas para la instalación de equipos de aire, redes de telefonía, entre otros, que permite la distribución de una planta completa sin necesidad de sacrificar espacios de oficina.

  • Planta tipo con área promedio de 1,400 m².
  • Sistema de aire acondicionado con dos manejadoras de aire por piso.
  • Cto. eléctrico, cto. de aseo y cto. de telefonía.
  • Sanitarios de Mujeres y Hombres, equipado para discapacitados y con ahorradores de agua.
  • Elevador tipo montacargas.
  • Escaleras internas y escaleras de emergencia.

Acceso

  • Locales comerciales.
  • 3 elevadores de estacionamiento.
  • 5 elevadores principales con sistema de sensor sísmico y programas de seguridad para habilitación en caso de incendio.
  • Acceso peatonal controlado mediante lectores de proximidad.
  • Acceso vehicular controlado y con seguridad 24/7.
  • Motor Lobby.

Sótanos

  • Servicio de Valet Parking.
  • Servicio de tintoreria.
  • Ventiladores de inyección y de extracción de aire en estacionamientos, activados por medio de sensores de monóxido de carbono.
  • Biciestacionamiento en sótano.

Instalación y Sistemas

  • Oficina de administración y comedor para el personal.
  • Áreas de estar para vigilancia.
  • Cuartos cerrados para almacenamiento y recolección de basura.
  • Sistema de Seguridad CCTV 24 horas al día en accesos, áreas comunes, estacionamientos y cámaras viajeras dentro de elevadores.
  • Subestación eléctrica.
  • Planta de emergencia.
  • Equipo contra incendio, detectores de humo y rociadoitres (sprinklers) instalados en áreas comunes en todos los niveles y preparación para su instalación en áreas privativas.
  • Cisterna para abastecimiento con capacidad para servicio y con reserva reglamentaria para el sistema contra incendio.
  • Sistema de bombeo dúplex.

Detalles

Niveles de oficinas
15
Planta tipo
1,405 m²
Área Rentable
19990 m²
Número de cajones
1 c/30 m²
Estacionamiento
9 niveles

Sostenibilidad

Corporativo MCS 193 cuenta con un diseño eficiente el cual genera grandes ahorros.

  • Fachada Sistema Duo-Vent.
  • Cubierta con elementos de aluminio y cristal laminado de 6, 12, 6 mm, instalado para optimización de aire acondicionado y disminución de ruidos externos.
  • Luz natural.
  • Ahorro de agua.
  • Inscrito al Programa de Auditoría Ambiental.

Edificio
Inteligente

  • Monitoreo de sistema central (A.A., Sistema vs Incendios y Electricidad).
  • Sistema de aire acondicionado de precisión.
  • CCTV en áreas comunes.
  • Control de accesos mediantes lectores de proximidad.
  • Toma para rociadores en áreas privativas y conexión para detectores de humo.
  • Gabinete vs incendio en núcleo central.
Área total (rentable)
19,990 m²
Área total (útil)18,270 m²
Planta tipo de oficinas (rentable)1,405 m²
Planta tipo de oficinas (útil)1,280 m²
Niveles de oficinas15 niveles
Niveles de estacionamiento9 niveles
Número de cajones1 c/30 m²
Altura de Entrepiso4.30 m

Ubicación

  • Ubicado en una de las zonas con mayor crecimiento económico de la CDMX, donde se encuentran restaurantes, supermecados y centros comerciales, a esto se suman galerías de arte, museos y librerías; además de que es un importante centro de negocios. El gran movimiento que se registra se equilibra con un buen número de parques y áreas verdes.
  • Corporativo MCS 193 esta rodeado por avenidas principales como: Av. Rio San Joaquin y Av. Ejercito Nacional lo que proporciona un fácil acceso mediante su frentes a Blvd. Miguel de Cervantes Saavedra.
  • Múltiples servicios en la zona.
  • Diversas vías de acceso mediante transporte público.

Servicios de la zona

  • Sector corporativo financiero
  • Centro comercial
  • Parques
  • Transporte público
  • Hoteles
  • Restaurantes
  • Museos

Ubicación

  • Dirección Calz. Gral. Blvd. Miguel de Cervantes Saavedra 193
  • Alcaldía Miguel Hidalgo
  • Estado Ciudad de México
  • Código postal 11520
  • Colonia Granada
  • País México

Características PLUS

  • : Vestíbulo con terminados de mármol y lambrines de madera de primera calidad.
  • : Vestíbulo principal a doble altura
  • : Altura de entre pisos de 4.30 mts.
  • : Elevador VIP con servicio directo a oficinas desde estacionamientos.

Programar una visita

Tu información

Compare listings

Compare
Helfon Arquitectos
  • Helfon Arquitectos